Если цена в объявлении изменится, мы сразу сообщим вам об этом на электронную почту.
Нажимая «Подписаться», вы соглашаетесь с правилами.
продам дом, Знаменская, 26/2565 800 000 ₽
23 дек
Дата публикации объявления
Обн. 20 апр
Дата обновления объявления
7
Количество просмотров (+ просмотры за сегодня)
22 308 ₽/м²
Чистая продажа
Термин "Чистая продажа" означает, что в квартире никто не прописан или
есть куда выписаться и вывезти вещи. Это лучший вариант для покупателя.
Вероятность срыва сделки минимальна.
Этажей2
Площадь участка4,98 соток
Общая площадь260 м2
ЭлектричествоЕсть
Газоснабжениенет
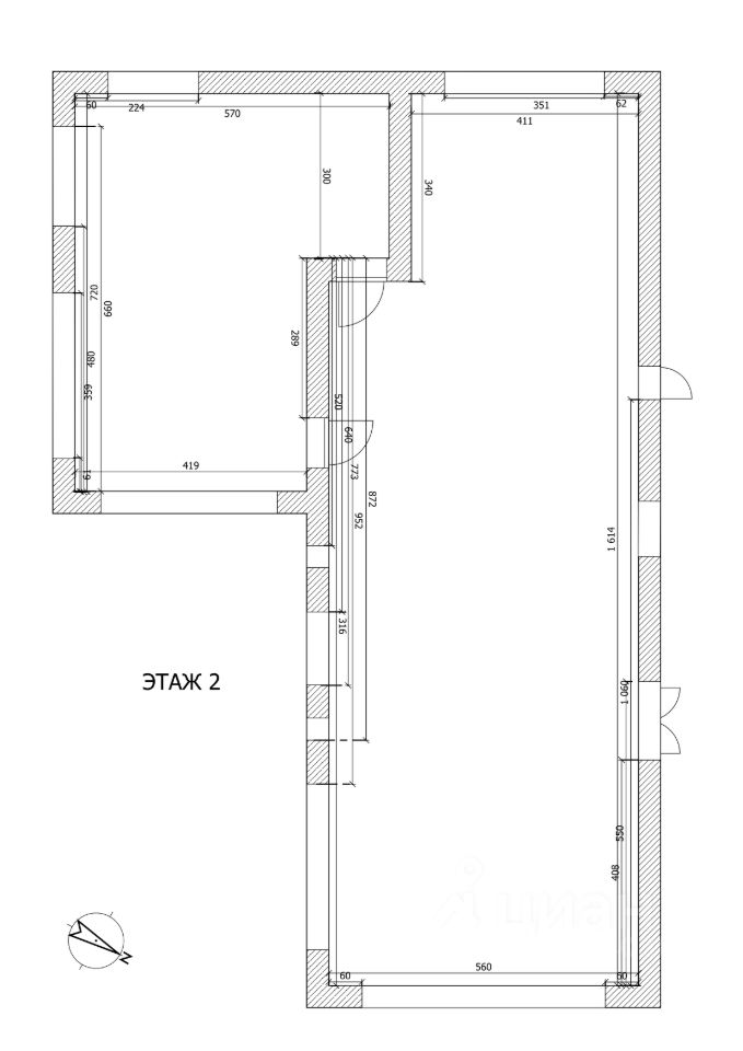
Продается недостроенный двухэтажный дом на участке 5 соток. Размеры есть на плане в фото. Перед домом залит фундамент 6*9м под гараж (можно и баню/хозблок поставить). Фундаменты дома и гаража ленточные на сваях. Запас прочности под 5-этажку ))) Строилось всё ''для себя'', ''на века''. Земля в собственности. 1 собственник (не женат, обременений на собственность никаких нет))). Строение не начинал оформлять, так как не понятна еще планировка. Так как это СНТ, то оформление упрощенное. Граница участка проходит ровно между домами. С остальных сторон очевидным забором. Электричество проведено от СНТ. Газ, воду, городское электричество провести не проблема. Рядом по улице. Канализацию - проще сделать септик 3-4 кольца.
Продается недостроенный двухэтажный дом на участке 5 соток. Размеры есть на плане в фото. Перед домом залит фундамент 6*9м под гараж (можно и баню/хозблок поставить). Фундаменты дома и гаража ленточные на сваях. Запас прочности под 5-этажку ))) Строилось всё ''для себя'', ''на века''. Земля в собственности. 1 собственник (не женат, обременений на собственность никаких нет))). Строение не начинал оформлять, так как не понятна еще планировка. Так как это СНТ, то оформление упрощенное. Граница участка проходит ровно между домами. С остальных сторон очевидным забором. Электричество проведено от СНТ. Газ, воду, городское электричество провести не проблема. Рядом по улице. Канализацию - проще сделать септик 3-4 кольца. У соседей по 15 лет всё уходит, ни разу не откачивали. Центральную канализацию можно, но сложно. Соседи хорошие, адекватные люди. По дому - коробка, крыша и остекление 1 этажа готовы. 1 этаж отштукатурен. 2 этаж нужно ставить окна. Подскажу где заказывал, там у них кажется даже предоплата осталась. Школа, сад, поликлиника, магазины, трамвай - все в пределах 5 минут пешком или 1 минуту на машине. Трубы на фото уже убраны. По ним листы на крышу затаскивали.
Живу рядом. Могу показать в принципе в любой момент.
Строил для себя и детей. Жизнь немного скорректировала мои планы, поэтому продаю. Про мошенников знаю, под их влиянием не нахожусь ))) Моя фамилия не Долин ))) Обмен с доплатой на маленький дом на Ангарском тоже возможен. Продажа срочная. Поторговаться ради приличия можно, но и так скинул с 8 до 7. Больше особо некуда ))) Фамилия не Долин )))