Если цена в объявлении изменится, мы сразу сообщим вам об этом на электронную почту.
Нажимая «Подписаться», вы соглашаетесь с правилами.
продам 3-к, Бакинская, 621 756 000 ₽
19 фев
Дата публикации объявления
Обн. 19 мая
Дата обновления объявления
179 802 ₽/м²
Чистая продажа
Термин "Чистая продажа" означает, что в квартире никто не прописан или
есть куда выписаться и вывезти вещи. Это лучший вариант для покупателя.
Вероятность срыва сделки минимальна.
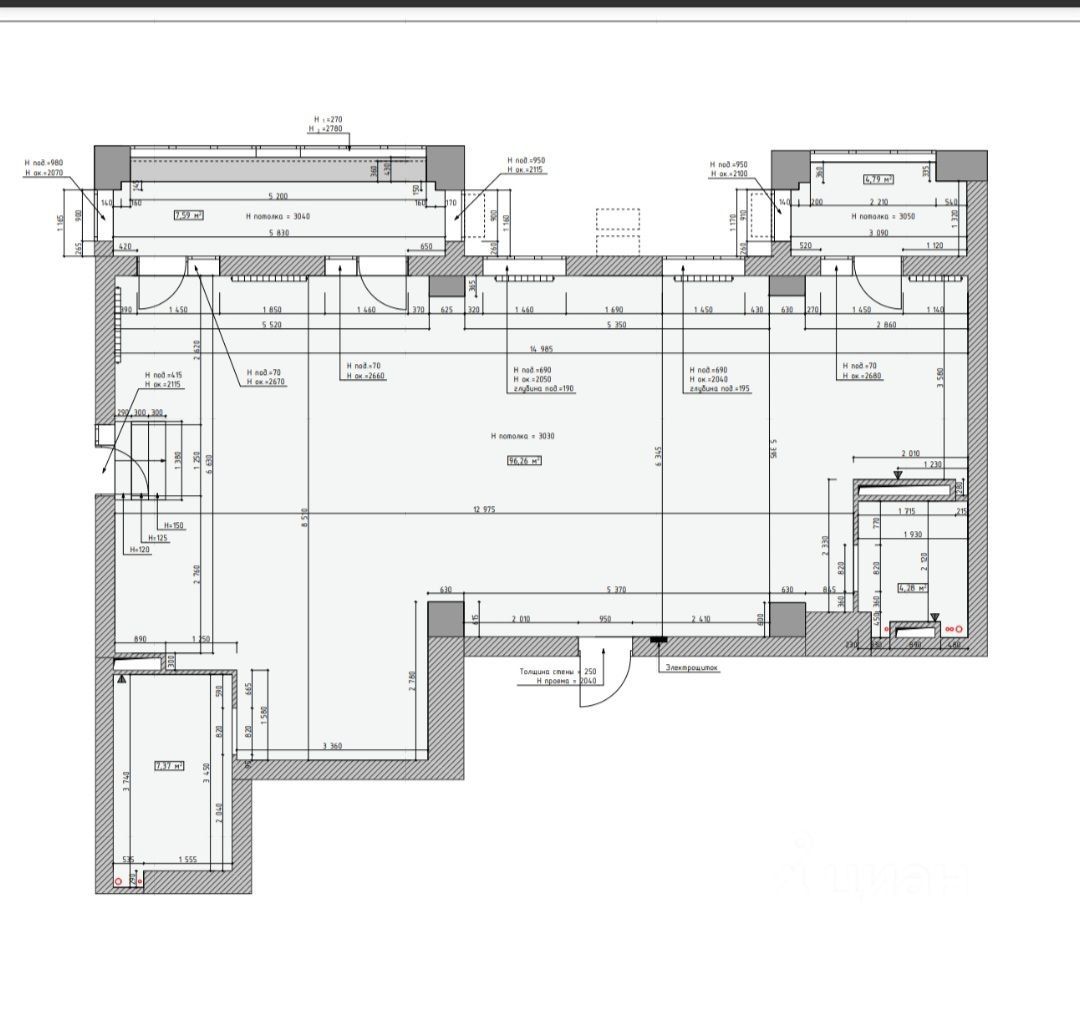
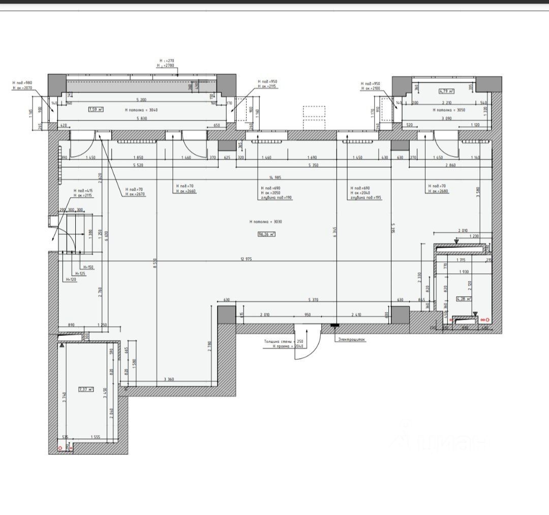
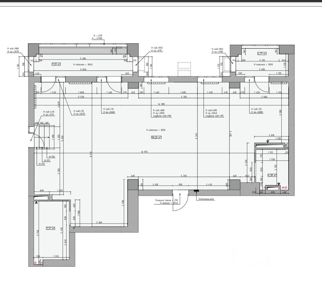
Представляю вашему вниманию 3-х комнатную квартиру в лучшем комплексе нашего города ЖК ''Арбат''. В принципе данный комплекс не нуждается в представлении, но тем не менее скажу, что это престижнейший комплекс Бизнес-класса в историческом центре города, выдержан в стиле сталинского ампира, дабы не нарушать облик исторической части города. Дом с круглосуточным консьерж-сервисом, внедрена система контроля доступа и видеонаблюдения в парадных и на этажах, кладовые и колясочные, конечно подземный паркинг, комплекс оборудован современными бесшумными грузовыми и пассажирскими лифтами.
Представляю вашему вниманию 3-х комнатную квартиру в лучшем комплексе нашего города ЖК ''Арбат''. В принципе данный комплекс не нуждается в представлении, но тем не менее скажу, что это престижнейший комплекс Бизнес-класса в историческом центре города, выдержан в стиле сталинского ампира, дабы не нарушать облик исторической части города. Дом с круглосуточным консьерж-сервисом, внедрена система контроля доступа и видеонаблюдения в парадных и на этажах, кладовые и колясочные, конечно подземный паркинг, комплекс оборудован современными бесшумными грузовыми и пассажирскими лифтами. Дворовая территория полностью огорожена, имеет многоуровневое освещение по всей территории , с ландшафтным дизайном, пешеходными дорожками, скамейками, игровыми площадками для детей разных возрастных групп, создана гармоничная среда, в которой все продумано до мелочей. Квартира со свободной планировкой, потрясающими видовыми характеристиками, планировка предполагает два санузла, две просторные лоджии и чудесное патио, где вы можете наслаждаться утренним кофе, медитировать или делать утреннюю зарядку! , Квартира очень теплая, даже при прикрученных батареях в квартире комфортная для жизни температура, с высокими 3-х метровыми потолками, на голову ничего не давит, дышится легко, все как и в домах сталинского фонда построенных для партийных элит того времени, того же качества и комфорта придерживался застройщик при планировании и строительстве данного комплекса. Мы понимаем что в квартирах данного сегмента навязать свой типовой ремонт в общем то бесполезная трата денег и времени, пусть новый собственник сам выбирает дизайнерское решение в котором будет комфортно жить и радоваться жизни, при этом хочу отметить что с квартирой мы передаем уже оплаченный проект от ведущего дизайнера нашего города, его мы передадим на безвозмездной основе, а выбор делать конечно вам!!! Естественно порадует инфраструктура объекта, с детскими садами и школами, парками и скверами, центральная набережная, стадион Волгоград-арена, множество магазинов, супермаркет, и прочее прочее прочее... Звоните, покажем в удобное для вас время!!