Если цена в объявлении изменится, мы сразу сообщим вам об этом на электронную почту.
Нажимая «Подписаться», вы соглашаетесь с правилами.
продам дом, Героев Тулы17 500 000 ₽
27 фев
Дата публикации объявления
Обн. 3 апр
Дата обновления объявления
1
Количество просмотров (+ просмотры за сегодня)
84 664 ₽/м²
Чистая продажа
Термин "Чистая продажа" означает, что в квартире никто не прописан или
есть куда выписаться и вывезти вещи. Это лучший вариант для покупателя.
Вероятность срыва сделки минимальна.
Этажей2
Площадь участка7,44 соток
Общая площадь206,7 м2
ЭлектричествоЕсть
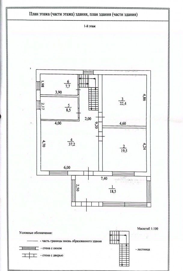
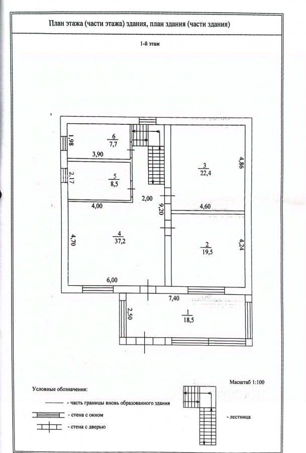
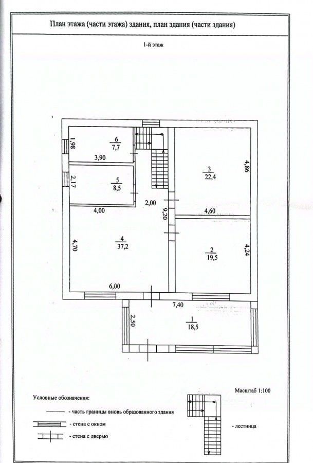
Продается 2-х этажный дом на участке 7,44 сот, расположенный в поселке ГЭС Тракторозаводского района. Рядом улицы: Латошинская, Героев Тулы. Идеально подходит для проживания большой семьи. Площадь 206,7 кв.м. Жилая: 125,9 кв.м. Кухня: 19,5 кв.м. Все удобства планировались в доме. 1-й этаж: Гостиная, спальня, кухня, сан.узел, коридор, подсобное помещение. 2-й этаж: 3 спальни, коридор, сан. узел. Коммуникации: газ, вода центральная и канализация, электричество 380 вольт. У дома Железобетонные перекрытия! Дом находится на стадии ремонта, что дает возможность сделать под себя. Установлены качественные пластиковые окна. Постройки: летняя кухня.
Продается 2-х этажный дом на участке 7,44 сот, расположенный в поселке ГЭС Тракторозаводского района. Рядом улицы: Латошинская, Героев Тулы. Идеально подходит для проживания большой семьи. Площадь 206,7 кв.м. Жилая: 125,9 кв.м. Кухня: 19,5 кв.м. Все удобства планировались в доме. 1-й этаж: Гостиная, спальня, кухня, сан.узел, коридор, подсобное помещение. 2-й этаж: 3 спальни, коридор, сан. узел. Коммуникации: газ, вода центральная и канализация, электричество 380 вольт. У дома Железобетонные перекрытия! Дом находится на стадии ремонта, что дает возможность сделать под себя. Установлены качественные пластиковые окна. Постройки: летняя кухня. В шаговой доступности: школы, д/сады, остановка общественного транспорта, магазины, в 5 минутах ходьбы Латошинское озеро Объект 1-51215