1-к, Днестровская, 14б Показать на карте
Центральный район
Волгоград
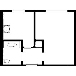
Предлагается к покупке уютная однокомнатная квартира в Центральном районе, на улице Днестровская, дом 14 Б. Этот компактный и комфортный вариант идеально подойдет для одного человека или пары. Состояние квартиры хорошее готово к заселению без дополнительного ремонта. Общая площадь составляет 30,2 кв.м. жилая комната 16 кв.м, кухня 6,7 кв.м.Санузел совмещенный, полы покрыты линолеумом. Преимущества объекта: - Удобное расположение в шаговой доступности основные транспортные развязки, магазины, кафе, школы и детские сады. Район отличается развитой инфраструктурой и хорошей транспортной доступностью. - Комфортные условия квартира не угловая, дом теплый, во дворе есть детская площадка. - Готовность к проживанию помещение светлое, с хорошей планировкой, подходит для жизни уже сейчас. Мебель остается по договоренности. Показы проводятся в удобное для вас время. Идеальный вариант для тех, кто ищет бюджетное жилье в центре города! Звоните поможем с оформлением!Объект 1-323465
30 м2
5 / 5 этаж
Кирпич
- Показать контакты
- Добавить в избранное
30 м2
5 / 5 этаж
Кирпич
3 600 000
119 205 /м2
