Дом, Листовая Показать на карте
Краснооктябрьский район
Волгоград
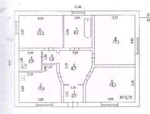
Представляем к продаже просторный дом с обширной жилой площадью, расположенный в тихом и уютном районе Краснооктябрьский на улице Листовой. Общая площадь дома составляет 95,6 м², что делает его идеальным вариантом для комфортного проживания семьи. Пространство грамотно распределено: жилая площадь занимает 31,8 м², а кухня 36,7 м², что позволяет создать функциональную зону для приготовления пищи и приема гостей. Дом находится на одном этаже, что делает его удобным для проживания людей любого возраста. Состояние объекта на текущий момент стройвариант, что предоставляет новым владельцам возможность воплотить свои дизайнерские идеи и адаптировать пространство под индивидуальные предпочтения. Три просторные комнаты могут быть использованы как спальни, кабинет или гостиная, в зависимости от потребностей. Санузел совмещенный, что экономит пространство и обеспечивает удобство. Полы выполнены из стяжки, что является отличной базой для дальнейшей отделки. Район Краснооктябрьский славится своей развитой инфраструктурой: в шаговой доступности находятся магазины, школы, детские сады и остановки общественного транспорта. Улица Листовая отличается спокойной атмосферой и близостью к природе, что делает этот дом отличным выбором для тех, кто ценит комфорт и уют. Этот объект идеальная возможность создать современное жилье с учетом всех ваших пожеланий. Дом подойдет как для постоянного проживания, так и для загородного отдыха. Не упустите шанс приобрести недвижимость с большим потенциалом в перспективном районе!Объект 1-321730
95 м2
1 этаж
- Показать контакты
- Добавить в избранное
95 м2
1 этаж
5 300 000
55 439 /м2
