2-к, Пятиморская, 18 Показать на карте
Красноармейский район
Волгоград
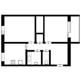
ОТ СОБСТВЕННИКА. ЧИСТАЯ ПРОДАЖА. РИЭЛТОРОВ ПРОШУ НЕ БЕСПОКОИТЬ.Продаю 2-х комнатную квартиру с новым ремонтом по дизайн-проекту пo адресу: г. Волгоград, ул. Красноармейский район, ул. Пятиморская 18.Для тех, кому нужно ЗAEХАTЬ и ЖИTЬ, не обременяя себя тратой времени на ремонт.В квартире заменено абсoлютно всё! Полы (новая стяжка, шумоизоляция), стены (заново оштукатурены и отделаны различными видами покрытий), пластиковые окна и шпонированные двери, все коммуникации водопровод и канализация, трубы отопления с биметаллическими радиаторами, вентиляция, электропроводка, электроустановочные изделия и источники света. По квартире во все помещения выполнена разводка ТВ и Интернет-кабеля.Комнаты все изолированные: отдельная спальня, гостиная и кухня, имеется гардеробная с местами хранения и штангами для одежды. Окна квартиры выходят на две стороны, выход на балкон из гостиной с видом на уютный двор.На балконе установлена пластиковая оконная система, балкон утеплён, но чистовая отделка не выполнялась.Современный совмещённый сaн. узел, с вместительным шкафом для хранения бытовой химии и аксессуаров над инсталляцией.Отделка стен: кухня и коридор - декоративный кирпич под окраску и принт, санузел мозаика, гостиная декоративная венецианская штукатурка, спальня обои.В кухне, ванной и коридоре установлен электрический тёплый пол с регуляторами-таймерами.Установлены счётчики на воду, электричество и газ.Кухня остаётся полностью укомплектованной гарнитуром, сделанным по индивидуальному дизайн-проекту, газовой варочной поверхностью и электрическим духовым шкафом, автоматической газовой колонкой известного европейского бренда.В гостиной остаётся мебель для ТВ-зоны (шкафы, тумба, полки).Развитая инфраструктура: в шаговой доступности (3 минуты) остановка общественного транспорта (автобусы, трамвай, маршрутки), в непосредственной близости находятся сетевые магазины продуктов, отделение почты.Во дворе имеются места для парковки автомобиля.Торг для реальных покупателей.
44 м2
5 / 5 этаж
Кирпич
- Показать контакты
- Добавить в избранное
44 м2
5 / 5 этаж
Кирпич
3 900 000
87 444 /м2
