2-к, 70-летия Победы, 6 Показать на карте
Кировский район
Волгоград
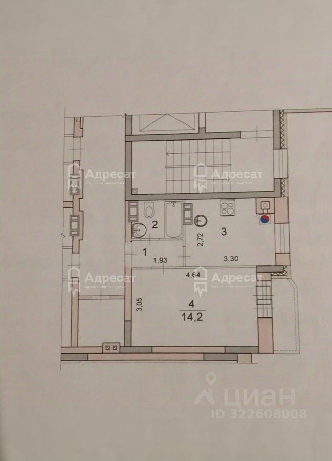
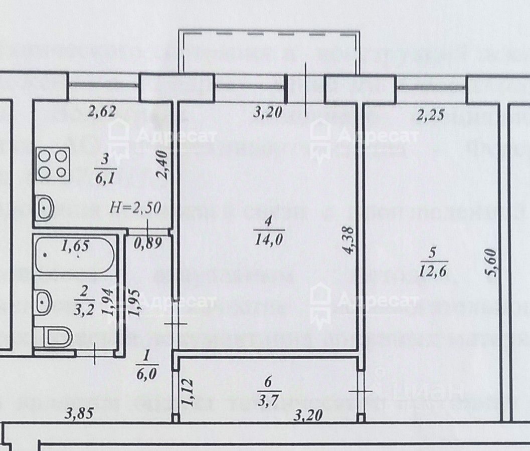
2-комнатная КВАРТИРА в отличном состоянии на улице 70-летия Победы в Кировском районе! Просторная и уютная, она идеально подойдет для комфортной жизни семьи или пары. Общая площадь квартиры составляет 46,9 кв.м., жилая площадь — 26,9 кв.м., а кухня — 8,5 кв.м. Квартира расположена на 4 этаже 5-этажного дома типа ''Улучшенка'', что гарантирует качественную планировку и надежность конструкции. Состояние квартиры — отличное, сделан качественный ремонт с использованием современных материалов. Полы выложены ламинатом, который сочетает в себе долговечность и эстетичный внешний вид. Санузел раздельный, что добавляет удобства в повседневной жизни. Кухня просторная, позволяет разместить всю необходимую технику и мебель. Квартира находится в развитом районе с развитой инфраструктурой. Рядом расположены школы, детские сады, поликлиники, торговые центры, включая популярные сети магазинов, а также кафе, фитнес-клубы и другие объекты для комфортного проживания. Во дворе дома есть детская площадка и парковочная зона, что делает жизнь еще более удобной. Квартира подходит для покупки в ипотеку, с использованием материнского капитала или жилищных сертификатов. Это отличный вариант для тех, кто ищет уютное жилье в развитом районе с отличной транспортной доступностью. Чистый подъезд, дружелюбные соседи и спокойная атмосфера делают этот объект настоящей находкой для будущих владельцев. Квартира готова к заселению — все выполнено с любовью и вниманием к деталям. Не упустите шанс стать счастливым обладателем этого уютного жилья!Объект 1-286759
46 м2
4 / 5 этаж
- Показать контакты
- Добавить в избранное
46 м2
4 / 5 этаж
5 600 000
119 403 /м2
