3-к, Коммунистическая, 9 Показать на карте
Центральный район
Волгоград
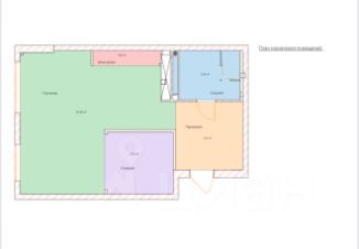
Номер объекта: 539540. Приглашаем к просмотру квартиры во вторичном жилье! Просторная трехкомнатная квартира в сомом центре города Волгограда, на четвертом этаже пятиэтажного дома. Общая площадь квартиры составляет 78.30 кв.м., а кухня занимает 7,9 кв.м. Идеальное месторасположение по локации. все виды общественного транспорта, рядом улицы Комсомольская, Пионерская, проспект Ленина, центральный парк культуры и отдыха, ж/д и автовокзал, все для работы досуга культуры и отдыха в пешей доступности.Дом кирпичный 1957 года постройки, Сталинской планировки, просторные подъезды, высокие потолки, большие окна в квартирах, толстые кирпичные стены, все это создает простор, тепло и много света.Квартира расположена на 4 этаже, выполнен стандартный ремонт, что позволит воплотить любые дизайнерские идеи,три изолированные комнаты, раздельный санузел, вместительная кухня 8 метров, две кладовые которые можно использовать под гардеробные. та к же будет отличным вариантом для сдачи в аренду, рядом вокзал много вузов, аренда в данном месте будет пользоваться огромным спросом. особенно по отдельно по комнатам.В собственности более 5 лет, без обременений, никаких долгов и арестов, маткап не использовался, никто не прописан.Чистая продажа, обмен не интересует.Не упустите возможность стать владельцем этой замечательной квартиры! Звоните нам прямо сейчас, чтобы договориться о просмотре и обсудить условия покупки. Удобное расположение, комфорт и уют - все это вас ждет в данной квартире!
78 м2
4 / 5 этаж
Кирпич
- Показать контакты
- Добавить в избранное
78 м2
4 / 5 этаж
Кирпич
10 100 000
128 991 /м2
